10701 Charleston Drive
View Full Details >Set on a corner lot where palm-tree-lined Windsor Boulevard meets the golf course in the heart of Windsor Village, this classic residence is a pleasant stroll from all of the Village Centre amenities.

Overview
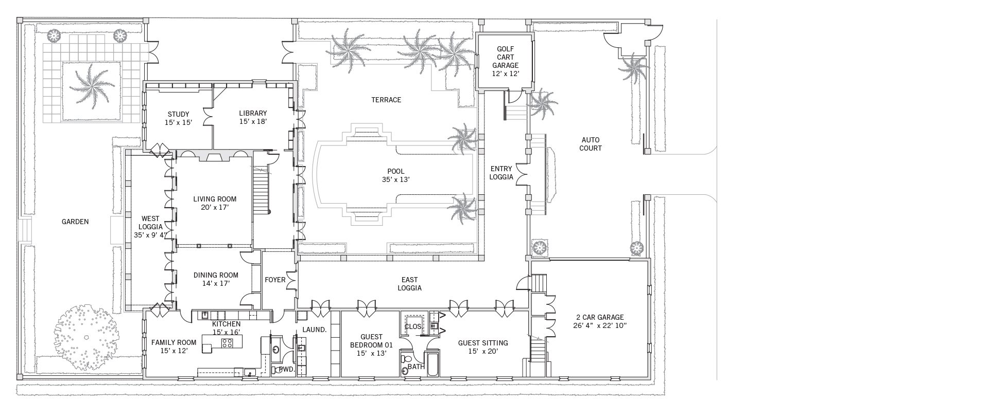
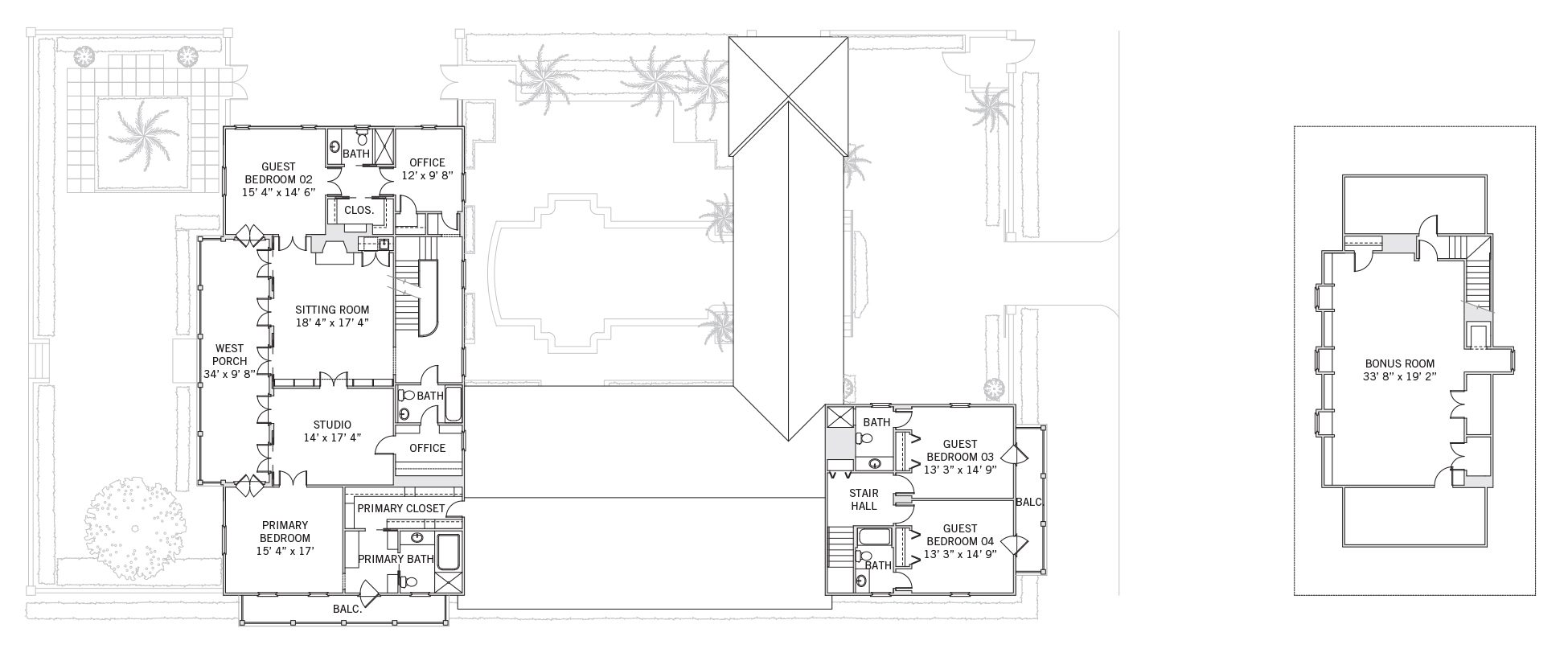
Set on a premier corner property along the golf course in Windsor’s Village, this 7,000+ square foot residence, originally built in 1995 is well-conceived. Its welcoming entry loggia leads to a central courtyard with a large swimming pool. Expansive living, dining, and entertainment areas, along with the bedrooms, capture sweeping western views of Windsor’s iconic links-style golf course. Designed for effortless indoor-outdoor living, all ground-floor spaces and most second-floor spaces open onto deep loggias or porches.


Property Details
Price
$6,150,000
Status
Available
Bedrooms
6
Bathrooms
6 Full, 1 Half
AC SQ FT
7,228
NON-AC SQ FT
2,959
LOT SQ FT
11,844
Location
Block 5 / Lot 1
Architect
James Gibson
Builder
Hill / Jones Construction
Year Built
1995
Property Location
10701 Charleston Drive


Property
Amenities



Ground Floor
Second Floor
LIVING &
ENTERTAINING
Crafted to frame scenic vistas, the home offers a seamless flow between interior and exterior spaces. On the ground floor, generously proportioned living and dining rooms open to a loggia overlooking the rear garden and golf course. A library and study extend to the central courtyard, while the open-plan kitchen and family room benefit from southern and western exposures. The second floor features two bedrooms and two living areas, each opening through French doors to a spacious shared porch with panoramic golf course views. Additionally, two courtyard-facing offices provide quiet retreats for work or study. A versatile third-floor space, enhanced by dormer windows, enjoys abundant natural light.



PRIVATE SUITES

Contact Windsor Real Estate, Inc. for further information.
Property InquiryAmenities
An extensive collection of amenities makes Windsor endlessly interesting and enriching.
LEARN MORE >

VERO BEACH
Windsor is located just 20 minutes from the historic center of Vero Beach, a charming seaside town on Florida’s Treasure Coast.
LEARN MORE >




















































